提供專業控制閥解決方案! 銷售熱線:021-5186 3046
上海川滬閥門有限公司
ShangHai Chuanhu Valve CO.,LTD
我們做的不僅是產品還是解決方案
川滬閥門品牌:電動球閥、電動蝶閥、氣動球閥、氣動蝶閥、電動調節閥、氣動調節閥
自力式調節閥、快速切斷閥、低溫閥門、耐腐蝕閥門、衛生級閥門、截止閥、閘閥
電動執行器、氣動執行器
氣動法蘭閘閥
一、氣動法蘭閘閥 產品概述
上海川滬閥門有限公司生產的Z641H、Z641Y、Z641F 氣動法蘭閘閥,具有氣動執行機構(雙層氣缸,并帶有緩沖機構)和手動及其保護機構(手動和可自鎖的氣動-手動轉換裝置)的低支架明桿閘閥。該閥由于采用雙層氣缸結構,其與單氣缸式氣動閘閥相比,提升力增大了一倍。這就從根本上解決了單氣缸氣動閘閥的某些閥體內楔死而打不開的弊病。而且,由于該閥具備緩沖機構,能有效地減速輕了關閉閥門時,由于活塞下行沖擊而造成的閥板車密封面和閥體密封面的磨損,同時,也能避免閘板卡死的現象。為了配合用戶實現操作自動化,本公司除供應本系列產品之外,還可單獨提供包括支架在內的氣缸體,幫助用戶對已有的種類繁多的手動閘閥進行改造,將雙缸氣動執行機構部分安裝在手動閘閥的閥體大蓋上,即可構成雙缸式氣動-手動兩用閘閥。
適用場景:
Z641H、Z641Y、Z641F 氣動法蘭閘閥應用于石油、化工、冶金、電力、海運等部門作為輸送氣體、液體介質的管道。
二、氣動法蘭閘閥 產品圖片
![]() |
| 氣動法蘭閘閥(不銹鋼法蘭連接、帶電磁閥、氣源三聯件、閥位反饋) |
三、氣動法蘭閘閥 產品型號
| 閥體材質 | 型號 |
|---|---|
| 碳鋼 | Z641H、Z641Y、Z641F-16C,Z641H、Z641Y、Z641F-25C |
| 不銹鋼 | Z641H、Z641Y、Z641F-16P,Z641H、Z641Y、Z641F-25P |
四、氣動法蘭閘閥 零部件材料
| 型號 | 材料 | ||||
|---|---|---|---|---|---|
| 閥體、閥蓋、閘板 | 閥座、閘板密封面 | 閥桿 | 填料 | 氣缸 | |
| Z641H-16C | 碳素鋼 | 堆焊鐵其合金 | 鉻不銹鋼 | 石棉石墨/柔性石墨 | 無縫鋼管 |
| Z641H-25 | |||||
| Z641H-40 | |||||
| Z641H-63 | |||||
| Z641Y-16C | |||||
| Z641Y-25 | 堆焊硬質合金 | ||||
| Z641F-16C | 閥板堆焊鐵基合金 閥座鑲聚四氟乙烯 |
||||
| Z641F-25 | |||||
五、氣動法蘭閘閥 主要技術參數
| 型號 | PN | 工作壓力/MPa | 適用溫度/℃ | 適用介質 |
|---|---|---|---|---|
| Z641H-16C | 16 | 1.6 | ≤350 | 水、蒸汽、油品等無腐蝕性介質 |
| Z641H-25 | 25 | 2.5 | ||
| Z641H-40 | 40 | 4.0 | ||
| Z641H-63 | 63 | 6.3 | ||
| Z641Y-16C | 16 | 16 | ||
| Z641Y-25 | 25 | 2.5 | ||
| Z641F-16C | 16 | 1.6 | ≤150 | |
| Z641F-25 | 25 | 2.5 |
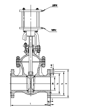
六、氣動法蘭閘閥 結構圖
![]() |
七、氣動法蘭閘閥 連接尺寸
| DN | D | D1 | D2 | b | f | L | Z-d |
|---|---|---|---|---|---|---|---|
| 50 | 160 | 125 | 100 | 20 | 3 | 250 | 4×18 |
| 80 | 195 | 160 | 135 | 22 | 3 | 280 | 8×18 |
| 100 | 230 | 190 | 160 | 24 | 3 | 300 | 8×23 |
| 150 | 300 | 250 | 218 | 30 | 3 | 350 | 8×25 |
| 200 | 360 | 310 | 278 | 34 | 3 | 350 | 12×25 |
| 250 | 425 | 370 | 332 | 36 | 3 | 400 | 12×30 |
| 300 | 485 | 430 | 395 | 40 | 4 | 500 | 16×30 |
| 350 | 550 | 490 | 448 | 44 | 4 | 550 | 16×34 |
| 400 | 610 | 550 | 495 | 48 | 4 | 600 | 16×34 |
| 450 | 660 | 600 | 555 | 50 | 4 | 650 | 20×34 |
| 500 | 730 | 660 | 610 | 52 | 4 | 700 | 20×41 |
| 600 | 840 | 770 | 718 | 56 | 5 | 800 | 20×34 |
八、氣動法蘭閘閥 安裝說明
1.安裝前須檢查閥門腔內和密封面等部位,不允許有污物或砂粒附著;本類閥門在管道中一般應當水平安裝。
2.各連接部位螺栓,要求均勻擰緊;
3.檢查填料部位要求壓緊,既保證填料的密封性,也要保證閘板開啟靈活;
4.用戶在安裝閥門前,必須校對閥門型號,連接尺寸及注意介質流向,保證與閥門要求一致性;
5.用戶在安裝閥門時,必須預留閥門驅動的必要空間;
6.驅動裝置的接線須按線路圖進行;
7.氣動刀型閘閥必須定期保養,不得隨意碰撞及擠壓,以免影響密封。
下載:上海川滬閥門有限公司-產品樣本-氣動法蘭閘閥.PDF
氣動法蘭閘閥鏈接:http://www.danney.cn/products/qidongjiezhifa/z6s41h.html











