提供專業控制閥解決方案! 銷售熱線:021-5186 3046
上海川滬閥門有限公司
ShangHai Chuanhu Valve CO.,LTD
我們做的不僅是產品還是解決方案
川滬閥門品牌:電動球閥、電動蝶閥、氣動球閥、氣動蝶閥、電動調節閥、氣動調節閥
自力式調節閥、快速切斷閥、低溫閥門、耐腐蝕閥門、衛生級閥門、截止閥、閘閥
電動執行器、氣動執行器
電動截止閥
一、電動襯氟截止閥 產品概述
上海川滬閥門有限公司生產的電動襯氟截止閥由全襯氟截止閥與Z型多回轉電動執行器組成
電動襯氟截止閥型號為:J941F46,電動襯氟截止閥基本結構:
1.氟塑料襯里J41F46型直通式、J45F46直流式、J44F46型角式截止閥,具有結構緊湊、啟閉靈活、耐腐蝕性能強,行程短(一般為公稱通徑1/4)等項優點,被廣泛應用在石油、化工等管路系統中做截斷介質用,但需要強調的是氟塑料襯里的截止閥嚴禁用做流量調節,以免節流口處產生的高速介質流沖蝕破壞密封面。
2.閥瓣與閥桿設計為一體結構,用以防止由于管路壓力波動造成內件沖出閥體的可能性,結構緊湊,使用安全。
二、電動襯氟截止閥 產品圖片
![]() |
| 電動襯氟截止閥(碳鋼法蘭襯氟型) |
三、電動襯氟截止閥 執行標準
| 遵循規范 | STANDARD |
|---|---|
| 設計與制造 | GB 12238 /GB 12235 |
| 結構長度 | GB 12221 (長—短系列) |
| 法蘭尺寸 | JB78/JB79 (GB.HG.SH) |
| 壓力試驗 | GB/T 13927 |
| 標志 | GB 12220 |
| 供貨/td> | GB/T 12252 |
四、電動襯氟截止閥 基本材質
| 零件名稱 | 灰鑄鐵 | 鑄鋼 | 不銹剛 | 超低碳不銹鋼 | ||
|---|---|---|---|---|---|---|
| Z | C | P | R | PL | RL | |
| 閥體、閥蓋 | HT250/WCB | WCB | CF8 | CF8M | CF3 | CF3M |
| 閥瓣、閥桿 | 35 | 1Cr13 | 1Cr18Ni9 | 1Cr18Ni12Mo2 Ti | 00Cr18Ni10 | 00Cr17Ni14Mo2 |
| 活街螺栓 | 35 | 35 | 1Cr17Ni2 | 1Cr17Ni2 | 1Cr17Ni2 | 1Cr17Ni2 |
| 襯里層/閥座 | FEP(F46) PCTFE(F3) PFA (可溶性聚四氟乙烯) | |||||
| 填料 | PTFE (F4) PTFE (F4) | |||||
| 填料壓蓋 | WCB | WCB | CF8 | CF8M | CF3 | CF3M |
| 閥桿螺母 | ZCuAl10Fe3 ZCuAl10Fe3 | |||||
| 蝶栓 | 35 | 35 | 1Cr17Ni2 | 1Cr17Ni2 | 1Cr18Ni9Ti | 1Cr18Ni9Ti |
| 螺母 | 45 | 45 | 0Cr18Ni9 | 0Cr18Ni9 | 0Cr18Ni9 | 0Cr18Ni9 |
| 手輪 | HT200 | HT200 | WCC | WCC | WCC | WCC |
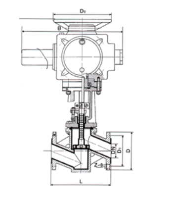
五、電動襯氟截止閥 結構圖
![]() |
七、電動襯氟截止閥 連接尺寸
| 公稱通徑 | 標準值 | 參考值 | |||||||||||
|---|---|---|---|---|---|---|---|---|---|---|---|---|---|
| DN (mm) | NPS (inch) | L | D | D1 | D2 | f | b | Z-φd | D0 | H1 | H2 | W(kg) | |
| PN1.0(MPa) | |||||||||||||
| 15 | 1/2 | 130 | 95 | 65 | 45 | 2 | 14 | 4-φ14 | 100 | 235 | 260 | 7 | |
| 20 | 3/4 | 150 | 105 | 75 | 55 | 2 | 16 | 4-φ14 | 100 | 240 | 265 | 7.5 | |
| 25 | 1 | 160 | 115 | 85 | 65 | 2 | 16 | 4-φ14 | 120 | 245 | 270 | 8 | |
| 32 | 11/4 | 180 | 135 | 100 | 78 | 2 | 18 | 4-φ18 | 140 | 255 | 285 | 12 | |
| 40 | 11/2 | 200 | 145 | 110 | 85 | 3 | 18 | 4-φ18 | 140 | 285 | 315 | 14 | |
| 50 | 2 | 230 | 160 | 125 | 100 | 3 | 20 | 4-φ18 | 160 | 295 | 330 | 19 | |
| 65 | 21/2 | 290 | 180 | 145 | 120 | 3 | 20 | 4-φ18 | 180 | 350 | 395 | 27 | |
| 80 | 3 | 310 | 195 | 160 | 135 | 3 | 22 | 4-φ18 | 240 | 395 | 445 | 42 | |
| 100 | 4 | 350 | 215 | 180 | 155 | 3 | 22 | 8-φ18 | 240 | 450 | 490 | 50 | |
| 125 | 5 | 400 | 245 | 210 | 185 | 3 | 24 | 8-φ18 | 280 | 525 | 555 | 64 | |
| 150 | 6 | 480 | 280 | 240 | 210 | 3 | 24 | 8-φ23 | 320 | 605 | 645 | 85 | |
| 200 | 8 | 495 | 335 | 295 | 265 | 3 | 26 | 8-φ23 | 360 | 645 | 765 | 105 | |
| 250 | 10 | 622 | 390 | 350 | 320 | 3 | 28 | 12-φ23 | 400 | 685 | 805 | 135 | |
| 300 | 12 | 698 | 440 | 400 | 368 | 4 | 28 | 12-φ23 | 400 | 710 | 814 | 155 | |
| 350 | 14 | 787 | 500 | 460 | 428 | 4 | 30 | 16-φ23 | 450 | 750 | 855 | 320 | |
| PN1.6(MPa) | |||||||||||||
| 15 | 1/2 | 130 | 95 | 65 | 45 | 2 | 14 | 4-φ14 | 100 | 240 | 265 | 7 | |
| 20 | 3/4 | 150 | 105 | 75 | 55 | 2 | 16 | 4-φ14 | 100 | 245 | 270 | 7.6 | |
| 25 | 1 | 160 | 115 | 85 | 65 | 2 | 16 | 4-φ14 | 120 | 250 | 275 | 8.2 | |
| 32 | 11/4 | 180 | 135 | 100 | 78 | 2 | 18 | 4-φ18 | 140 | 260 | 290 | 12 | |
| 40 | 11/2 | 200 | 145 | 110 | 85 | 3 | 18 | 4-φ18 | 140 | 285 | 325 | 14 | |
| 50 | 2 | 230 | 160 | 125 | 100 | 3 | 20 | 4-φ18 | 160 | 300 | 335 | 18 | |
| 65 | 21/2 | 290 | 180 | 145 | 120 | 3 | 20 | 4-φ18 | 180 | 355 | 400 | 26 | |
| 80 | 3 | 310 | 195 | 160 | 135 | 3 | 22 | 8-φ18 | 240 | 400 | 450 | 40 | |
| 100 | 4 | 350 | 215 | 180 | 155 | 3 | 24 | 8-φ18 | 240 | 455 | 495 | 50 | |
| 125 | 5 | 400 | 245 | 210 | 185 | 3 | 26 | 8-φ18 | 280 | 530 | 560 | 65 | |
| 150 | 6 | 480 | 280 | 240 | 210 | 3 | 28 | 8-φ23 | 320 | 605 | 650 | 85 | |
| 200 | 8 | 495 | 335 | 295 | 265 | 3 | 30 | 12-φ23 | 360 | 650 | 770 | 150 | |
| 250 | 10 | 622 | 405 | 355 | 320 | 3 | 32 | 12-φ25 | 400 | 690 | 810 | 245 | |
| 300 | 12 | 698 | 460 | 410 | 375 | 4 | 34 | 12-φ25 | 400 | 730 | 845 | 295 | |
| PN2.5(MPa) | |||||||||||||
| 15 | 1/2 | 130 | 95 | 65 | 45 | 2 | 16 | 4-φ14 | 120 | 240 | 270 | 7.5 | |
| 20 | 3/4 | 150 | 105 | 75 | 55 | 2 | 16 | 4-φ14 | 120 | 245 | 275 | 8 | |
| 25 | 1 | 160 | 115 | 85 | 65 | 2 | 16 | 4-φ14 | 140 | 250 | 290 | 9 | |
| 32 | 11/4 | 180 | 135 | 100 | 78 | 2 | 18 | 4-φ18 | 160 | 260 | 325 | 13 | |
| 40 | 11/2 | 200 | 145 | 110 | 85 | 2 | 18 | 4-φ18 | 180 | 285 | 335 | 15 | |
| 50 | 2 | 230 | 160 | 125 | 100 | 3 | 20 | 4-φ18 | 180 | 300 | 335 | 20 | |
| 65 | 21/2 | 290 | 180 | 145 | 120 | 3 | 22 | 8-φ18 | 240 | 355 | 400 | 28 | |
| 80 | 3 | 310 | 195 | 160 | 135 | 3 | 22 | 8-φ18 | 280 | 400 | 450 | 42 | |
| 100 | 4 | 350 | 230 | 180 | 160 | 3 | 24 | 8-φ23 | 320 | 455 | 495 | 57 | |
| 125 | 5 | 400 | 270 | 210 | 188 | 3 | 28 | 8-φ25 | 320 | 560 | 560 | 71 | |
| 150 | 6 | 480 | 300 | 240 | 218 | 3 | 30 | 8-φ25 | 360 | 610 | 650 | 90 | |
注:由于產品改進技術創新參數可能有一定變化,公司不另行通知,請咨詢公司技術部門索取新數據。
下載:上海川滬閥門有限公司-產品樣本-電動襯氟截止閥.PDF
電動襯氟截止閥鏈接:http://www.danney.cn/products/diandongjiezhifa/j941f46.html








