提供專業控制閥解決方案! 銷售熱線:021-5186 3046
上海川滬閥門有限公司
ShangHai Chuanhu Valve CO.,LTD
我們做的不僅是產品還是解決方案
川滬閥門品牌:電動球閥、電動蝶閥、氣動球閥、氣動蝶閥、電動調節閥、氣動調節閥
自力式調節閥、快速切斷閥、低溫閥門、耐腐蝕閥門、衛生級閥門、截止閥、閘閥
電動執行器、氣動執行器
三片式快裝球閥
一、三片式快裝球閥 產品概述
三片式快裝球閥適合在常溫、常壓衛生潔凈系統中使用,作為管道介質切斷和調節流量大小使用,常用于純凈水、啤酒生產線、食品原材料生產線、乳業制品生產線、制藥和飲料生產線上使用。閥門經過鏡面拋光處理、通道無流阻和滯留,使得介質能順利通過閥門。閥體選用304、316、和316L不銹鋼材料,用卡箍和法蘭和管道連接,具有安裝方便、拆卸維護方便等特點。上海川滬閥門生產手動快裝球閥、衛生級法蘭球閥、氣動衛生級球閥和電動衛生級球閥等。
二、三片式快裝球閥 產品圖片
![]() |
![]() |
| 三片式快裝球閥 | 三片式快裝球閥 |
三、三片式快裝球閥 技術參數
| 產品型號 | Q81F-10P、Q81F-16P、Q81F-16R、Q81F-16RL |
|---|---|
| 工作溫度 | -10~135℃、滅菌溫度150℃(Max20min) |
| 閥體材質 | 不銹鋼SUS304、SUS316、SUS316L |
| 密封材料 | 聚四氟乙烯PTFE |
| 表面拋光精度 | 內外鏡面拋光Ra<0.4um |
| 驅動方式 | 手動、氣動、或電動 |
| 工作壓力 | 0-16bar |
| 結構形式 | 浮動直通式 |
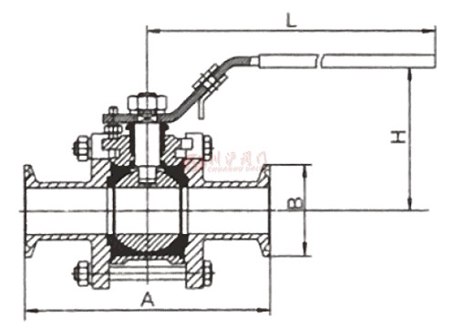
四、三片式快裝球閥 結構圖
![]() |
五、三片式快裝球閥 連接標準和尺寸
| Size | A | B | H | L |
|---|---|---|---|---|
| c12.7 | 95.0 | 50.5 | 60.0 | 132.0 |
| c19 | 95.0 | 50.5 | 60.0 | 132.0 |
| c25 | 120.0 | 50.5 | 60.0 | 165.0 |
| c32 | 130.0 | 50.5 | 65.0 | 170.0 |
| c38 | 140.0 | 50.5 | 70.0 | 194.0 |
| c51 | 164.0 | 64.0 | 70.0 | 194.0 |
| c63 | 190.0 | 77.5 | 90.0 | 230.0 |
| c76 | 195.0 | 91.0 | 127.0 | 252.0 |
| c89 | 197.0 | 106.0 | 135.0 | 252.0 |
| c102 | 242.0 | 119.0 | 159.0 | 332.0 |
注:由于產品改進技術創新參數可能有一定變化,公司不另行通知,請咨詢公司技術部門索取新數據。
下載:上海川滬閥門有限公司-產品樣本-三片式快裝球閥.PDF
三片式快裝球閥鏈接:http://www.danney.cn/products/weishengjitiaojiefa/wsjspqf.html
























