提供專業控制閥解決方案! 銷售熱線:021-5186 3046
上海川滬閥門有限公司
ShangHai Chuanhu Valve CO.,LTD
我們做的不僅是產品還是解決方案
川滬閥門品牌:電動球閥、電動蝶閥、氣動球閥、氣動蝶閥、電動調節閥、氣動調節閥
自力式調節閥、快速切斷閥、低溫閥門、耐腐蝕閥門、衛生級閥門、截止閥、閘閥
電動執行器、氣動執行器
呼吸閥
一、呼吸閥 產品概述
上海川滬閥門有限公司生產的呼吸閥又稱為全天候呼吸閥,呼吸閥為閥座相互重疊的重力式結構。其特點是閥盤與閥座之間采用帶空氣墊的軟接觸,氣密性好,不易結霜凍結,適宜于寒冷的地區使用。
呼吸閥用于油及液體罐上,來排除罐內的正壓和負壓氣體,使罐內液體進出方便.如罐體上不裝呼吸閥罐內的液體進出有一定的障礙,很可能出現罐體變型和振動,該閥設計合理,結構簡單,使用方便,是儲罐的必備產品。
二、呼吸閥 產品圖片
![]() |
| 呼吸閥(全天候呼吸閥) |
三、呼吸閥 技術參數(可定制呼吸壓力)
| A級正壓 | 355Pa (36毫米水柱) |
|---|---|
| 負壓 | 295Pa (30毫米水柱) |
| B級正壓 | 980Pa (100毫米水柱) |
| 負壓 | 295Pa (30毫米水柱) |
| C級正壓 | 1765Pa (180毫米水柱) |
| 負壓 | 295Pa (30毫米水柱 |
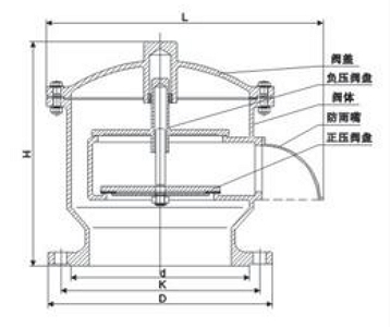
五、呼吸閥 結構圖
![]() |
六、呼吸閥 連接尺寸
| 公稱通徑 (mm) | 安裝尺寸(mm) | ||||
|---|---|---|---|---|---|
| D | K | L | H | n×φ | |
| DN25 | 115 | 85 | 160 | 165 | 4×14 |
| DN32 | 135 | 100 | 180 | 185 | 4×18 |
| DN40 | 145 | 110 | 190 | 190 | 4×18 |
| DN50 | 160 | 125 | 220 | 220 | 4×18 |
| DN80 | 195 | 160 | 270 | 260 | 8×18 |
| DN100 | 215 | 180 | 310 | 280 | 8×18 |
| DN150 | 280 | 240 | 380 | 330 | 8×22 |
| DN200 | 335 | 295 | 450 | 380 | 12×22 |
| DN250 | 395 | 350 | 520 | 420 | 12×22 |
| DN400 | 565 | 515 | 670 | 520 | 16×26 |
注:由于產品改進技術創新參數可能有一定變化,公司不另行通知,請咨詢公司技術部門索取新數據。
下載:上海川滬閥門有限公司-產品樣本-呼吸閥.PDF
呼吸閥鏈接:http://www.danney.cn/products/zilishitiaojiefa/hxf.html

















